Η έκδοση του προγράμματος περιήγησής σας δεν υποστηρίζεται πλέον. Ενημερώστε για μια καλύτερη εμπειρία.
€ 448.000
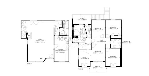
153 m²
3
4
Αποτελέσματα
32
Εκλεκτή κατοικία 153 τμ πώληση Πόβοα ντε Βαρζίμ, Πορτογαλία
€ 448.000
AED AED
AU$ AUD
R$ BRL
CA$ CAD
Fr. CHF
CN¥ CNY
₡ CRC
€ EUR
£ GBP
HK$ HKD
₪ ILS
JP¥ JPY
₩ KRW
zł PLN
₽ RUB
TL TRY
US$ USD
448.000
153 m² 3 4
ΠΕΡΙΓΡΑΦΗ
Η μετάφραση γίνεται αυτόματα από το Google Translate και μπορεί να μην είναι απολύτως ακριβής.
Δυστυχώς παρουσιάστηκε κάποιο πρόβλημα κατά την αυτόματη μετάφραση από το Google Translate. Παρακαλείστε να δοκιμάσετε ξανά αργότερα.