Su versión de browser no está soportada. Actualicela para una mejor experiencia,
JP¥ 103.070.000
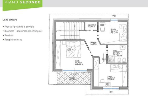
180 m²
3
4
Lista anuncios
6
Exclusiva Villa en venta Corso Centrale, Levico Terme, Tirol del Sur
JP¥ 103.070.000
AED AED
AU$ AUD
R$ BRL
CA$ CAD
Fr. CHF
CN¥ CNY
₡ CRC
€ EUR
£ GBP
HK$ HKD
₪ ILS
JP¥ JPY
₩ KRW
zł PLN
₽ RUB
TL TRY
US$ USD
103.070.000
180 m² 3 4
DESCRIPCION
La traducción automática utiliza el Traductor de Google y puede no ser completamente exacta.
Lo sentimos, se ha verificado un problema durante la traducción automática con Google Translate. Inténtalo de nuevo más tarde.