La version de votre navigateur internet n'est plus compatible. Veuillez le mettre à jour pour une meilleure expérience.

€ 530 000

Terrain de 2006 m2 en vente - Opio, Provence-Alpes-Côte d'Azur

€ 530 000
2 006 m²

Description

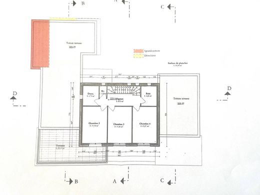
Terrain Opio - Votre Agence Privilège vous propose ce terrain à la vente d'une surface de 2000m2 avec un permis de construire accepté et purgé de tout recours, pour une maison de 189m 2 de surface de plancher avec piscine dont la réalisation a commencé (en sus du prix). L'environnement est très agréable, dégagé et au calme. A proximité des écoles et commerces.
Prix actuel avec maison édifié hors d'eau 900000 euros. Projet fini 1 500 000 euros.

Les honoraires sont à charge de l'acquéreur.

Les informations sur les risques auxquels ce bien est exposé sont disponibles sur le site Géorisques : georisques.gouv.fr"

Plus

Détails

Superficie interne:
2 006 m²
Référence:
85488702
Vue:
Zone Verte
Classe Énergétique:
Non communiqué
Classe émissions GES:
Non communiqué

En savoir plus

Position

L'annonceur n'a pas fourni l'adresse exacte de la propriété. Demander l'emplacement exact