גרסת הדפדפן שלך אינה נתמכת עוד. עדכן אותו לחוויה טובה יותר.
₽ 64,736,200
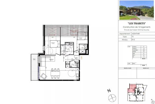
64 m²
2
2
רשימת מודעות
17
Les Houches, צרפת ב למכירה דירה יוקרתית 2
₽ 64,736,200
₽ RUB
AED AED
AU$ AUD
R$ BRL
CA$ CAD
Fr. CHF
CN¥ CNY
₡ CRC
€ EUR
£ GBP
HK$ HKD
₪ ILS
JP¥ JPY
₩ KRW
zł PLN
₽ RUB
TL TRY
US$ USD
אישור
64,736,200
64 m²
2
2
ותאור
תאור מקורי
מופעל על ידי
התרגום האוטומטי משתמש בתוכנת התרגום של גוגל ועשוי להיות לא מדוייק.
מצטערים, אירעה תקלה במהלך התרגום האוטומטי עם Google Translate. נסה שוב מאוחר יותר.
תרגם תאור זה לעברית
קראו את כל
פרטים
חדרים:
3
חדרי שינה:
2
חדרי שירותים:
2
מידה פנימית:
64 m²
מספר מרפסות:
1
נוף:
הר
סטטוס:
חדש/בבנייה
קוד:
85056440
דירוג אנרגטי
לא מסופק
דרגת פליטת גז
לא מסופק
גלה עוד
בקשת מידע נוסף
מיקום
המפרסם לא מסר את הכתובת המדויקת של הנכס. המיקום על המפה משוער.
בקש את המיקום המדויק
מודעות דומות
מודעות קשורות בLes Houches
למכירה בתי יוקרה
סוכנות נדל"ן יוקרתי