La versione del tuo browser non è più supportata. Aggiornalo per una migliore esperienza.

€ 950.000

Prestigiosa villa in vendita Pietrasanta, Italia

€ 950.000
140 m² 3 3

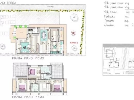
Descrizione

Si prenotano ville bifamiliari di nuova costruzione e di alta rifinitura.
Tutte le ville sono disposte su due livelli entrambe fuori terra:
P.T: ingresso, cucina, tinello sala, lavanderia e servizi, oltre ampio porticato e giardino su tre lati.
P.1: tre camere ( tutte con possibilità di metterci il letto matrimoniale) e due o tre bagni.
Domotica, solare termico, fotovoltaico, aria condizionata, cappotto, classe energetica A (da definire).
L'intervento è eseguito da importante gruppo immobiliare che fornirà tutte le garanzie previste per legge.
Consegna: Dicembre 2023

Leggi tutto

Dettagli

Camere:
5+
Camere da letto:
3
Bagni:
3
Superficie interna:
140 m²
Codice:
ITO2640
Cucine:
1
Giardino:
Privato
Numero Piani:
2
Stato:
Nuovo o in costruzione
Parcheggio

Scopri di più

Posizione

L'inserzionista non ha fornito l’indirizzo esatto dell’immobile. La posizione sulla mappa è approssimativa. Richiedi la posizione esatta