La versione del tuo browser non è più supportata. Aggiornalo per una migliore esperienza.

₽ 66.968.400

Villa di 139 mq in vendita Malinska, Croazia

₽ 66.968.400
139 m² 4 3

Descrizione

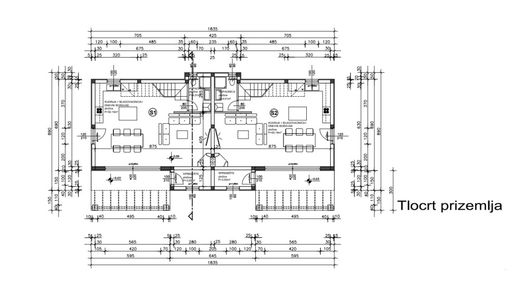
Una casa bifamiliare con piscina in costruzione a Malinska sull'isola di Krk! Ciascuna metà di questa splendida dimora si estende su 139,69 metri quadrati, meticolosamente progettata per offrire il massimo del comfort e di una vita lussuosa. Piano Terra Il piano terra dispone di una cucina spaziosa e moderna perfettamente collegata a un elegante soggiorno, creando uno spazio aperto ideale per riunioni di famiglia e socializzazione con gli amici. Inoltre, su questo piano si trova un bagno per gli ospiti, dotato di sanitari di alta qualità. Primo PianoAl primo piano, tre confortevoli camere da letto sono dotate ciascuna del proprio bagno privato. Questa disposizione pratica e lussuosa garantisce privacy e comfort a ogni membro della famiglia o ospite. Spazio all'apertoOgni metà della casa comprende la propria piscina, che offre il luogo perfetto per rilassarsi e divertirsi durante le calde giornate estive. Accanto alla piscina, ogni unità dispone di due posti auto. Costruzione e materialiAttualmente in costruzione, il completamento della casa è previsto entro la fine del 2025. L'uso di materiali di prima qualità durante la costruzione garantisce alta qualità e durata. Il riscaldamento sarà fornito da pompe di calore, mentre il raffreddamento sarà gestito da sistemi di climatizzazione multisplit, garantendo una temperatura ottimale durante tutto l'anno. SviluppatoreQuesto progetto è stato eseguito da uno sviluppatore rispettabile con una vasta esperienza nella costruzione sull'isola di Krk. La loro reputazione garantisce affidabilità e la massima qualità in ogni dettaglio. PosizioneQuesta casa bifamiliare a Malinska è la casa ideale per chi cerca un mix di lusso, comfort e vita moderna in uno splendido ambiente mediterraneo. Malinska e i suoi dintorni, conosciuti come Dubašnica, si trovano nella parte occidentale dell'isola di Krk. Fino al XV secolo Dubašnica non aveva quasi residenti permanenti, proprio come le zone meridionali che si estendevano fino alla città di Krk. Il nome Dubašnica deriva da "duba", che significa quercia, a causa dei suoi ricchi boschi e pascoli. Malinska, il cuore di Dubašnica, un tempo era un porto isolano per l'esportazione del legname e una destinazione turistica privilegiata dell'aristocrazia viennese. Menzionato nel XV° secolo come un buon ancoraggio, riparava le navi in caso di forti venti, in particolare del feroce "jugo". Con l'arrivo delle navi a vapore nel 1866 Malinska si trasformò da porto per l'esportazione di legname in una località climatica, grazie al clima mite e ai circa 260 giorni di sole all'anno. Oggi è un'importante destinazione turistica dell'isola, rinomata per le sue numerose spiagge, l'industria dell'ospitalità sviluppata e il turismo familiare. Spiagge e serviziLe spiagge nella zona di Malinska-Dubašnica sono collegate da numerose passeggiate, formando un insieme naturale unico. Queste spiagge vanno da piattaforme di cemento ben mantenute a ingressi avventurosi e selvaggi nel mare roccioso, con molti punti nascosti e appartati per nuotare in piccole insenature che vale la pena esplorare. Le spiagge si estendono lungo la parte occidentale dell'isola di Krk, a partire dalla "Rajska cesta" (Strada del Paradiso) che collega Malinska e Njivice, e termina oltre la romantica città di Porto. Malinska è una destinazione amata dalle famiglie con bambini. Oltre all'eccellente connettività e alla vicinanza a Fiume e Zagabria, la sistemazione in famiglia e in hotel, le spiagge e i punti ristoro a prezzi accessibili hanno reso Malinska la scelta migliore per molte famiglie nel corso degli anni. La sicurezza e la tranquillità offerte da Malinska sono un ulteriore vantaggio per i genitori che cercano il vero relax. Se volete che i vostri bambini vivano la magia di una vacanza dove tutti voi potete passeggiare, andare in bicicletta o trascorrere giornate in riva al mare cristallino, circondati dalla natura senza rumore eccessivo – visitate Malinska. Una vacanza estiva qui può essere molto più che prendere il sole e ascoltare le onde del mare. Le vacanze attive stanno diventando sempre più popolari: dal ciclismo, alla corsa, all’escursionismo, alla vela e agli sport acquatici. Con il suo clima mite, il mare pulito, la rigogliosa vegetazione mediterranea e i numerosi sentieri e passeggiate, Malinska è diventata una destinazione per molti appassionati di sport all'aria aperta e vacanze attive. La cultura mediterranea, come la cultura dell’isola croata, è profondamente radicata nella famiglia, nell’architettura, nella musica e nel cibo – nella sua coltivazione, lavorazione, preparazione e consumo. La popolazione locale, tradizionalmente dedita alla pesca, all'olivicoltura, alla viticoltura, alla coltivazione dei fichi e all'allevamento di pecore, ha preservato questo patrimonio con orgoglio. Rif: RE-U-31157Le spese aggiuntive complessive sostenute dall'acquirente di beni immobili in Croazia ammontano a circa il 7% del costo totale della proprietà, che include: imposta sul trasferimento della proprietà (3% del valore della proprietà), commissione di agenzia/intermediazione (3%+ IVA su commissione), onorario dell'avvocato (cca 1%), spese notarili, spese di registrazione al tribunale e spese di traduzione giurata ufficiale. Il contratto di agenzia/intermediazione viene firmato prima di visitare le proprietà.

Leggi tutto

Dettagli

Camere da letto:
3
Bagni:
4
Superficie interna:
139 m²
Codice:
RE-U-31157

Scopri di più

Posizione

L'inserzionista non ha fornito l’indirizzo esatto dell’immobile. Richiedi la posizione esatta