La versione del tuo browser non è più supportata. Aggiornalo per una migliore esperienza.

€ 469.000

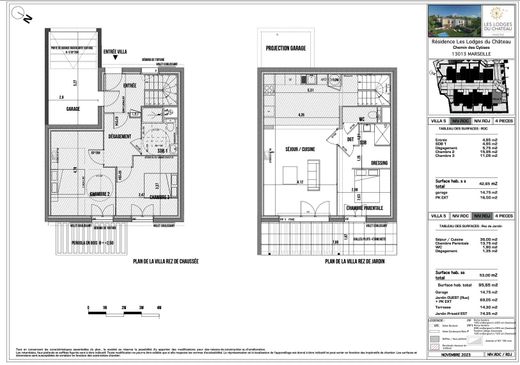
Casa di lusso di 95 mq in vendita Marsiglia, Francia

€ 469.000
95 m²

Descrizione

Vivi nel cuore del 13° arrondissement. Scopri questa bellissima casa di tipo 4 di circa 95,6 m2 in un residence di sole 9 case. Beneficerai dei vantaggi della nuova costruzione. Il piano terra comprende un ampio soggiorno-cucina luminoso, una master suite dotata di bagno e toilette. Al piano superiore, due ampie camere da letto, un secondo bagno e toilette offrono un comfort ottimale per tutta la famiglia. Puoi goderti un giardino di 74 m2 davanti al soggiorno. Completano la casa un garage ed un parcheggio esterno. Consegna: marzo 2025

Leggi tutto

Dettagli

Camere:
4
Superficie interna:
95 m²
Codice:
85429496
Riscaldamento:
Termosifoni
Sorgenti di Riscaldamento:
Elettrico
Stato:
Nuovo o in costruzione
Vista:
Zona Verde
Classe Energetica
A
Classe emissione gas
A

Scopri di più

Posizione