La versione del tuo browser non è più supportata. Aggiornalo per una migliore esperienza.
CN¥ 2.933.600
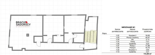
112 m²
Lista annunci
18
Appartamento di prestigio di 112 m² in vendita Rynek, Żywiec, Voivodato di Slesia
CN¥ 2.933.600
AED AED
AU$ AUD
R$ BRL
CA$ CAD
Fr. CHF
CN¥ CNY
₡ CRC
€ EUR
£ GBP
HK$ HKD
₪ ILS
JP¥ JPY
₩ KRW
zł PLN
₽ RUB
TL TRY
US$ USD
2.933.600
112 m²
Descrizione
La traduzione automatica usa Google Translate e potrebbe non essere del tutto accurata.
Siamo spiacenti, si è verificato un problema durante la traduzione automatica con Google Translate. Riprova più tardi.