De versie van uw browser wordt niet langer ondersteund. Werk het bij voor een betere ervaring.
₽ 856.869.000
240 m²
3
4
Advertenties Listing
4
Wil je meer foto's?
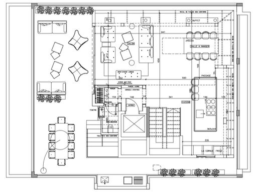
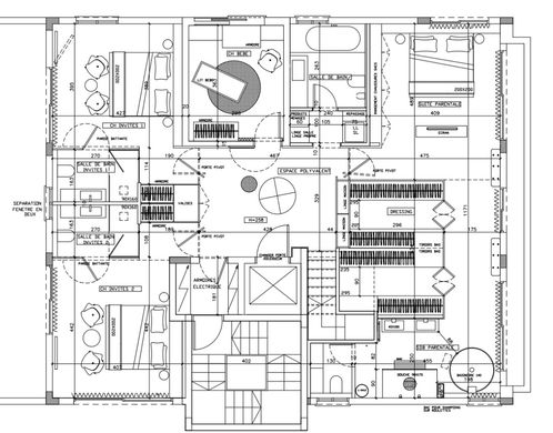
Penthouse met 5 kamers te koop in mikha street, Tel Aviv, Tel Aviv District
₽ 856.869.000
AED AED
AU$ AUD
R$ BRL
CA$ CAD
Fr. CHF
CN¥ CNY
₡ CRC
€ EUR
£ GBP
HK$ HKD
₪ ILS
JP¥ JPY
₩ KRW
zł PLN
₽ RUB
TL TRY
US$ USD
856.869.000
240 m² 3 4
Omschrijving
De automatische vertaling wordt gegenereerd door Google en kan niet volledig correct zijn.
Het spijt ons, er is een probleem opgetreden met de automatische vertaling met Google Translate. Probeer het later opnieuw.