De versie van uw browser wordt niet langer ondersteund. Werk het bij voor een betere ervaring.

€ 509.900

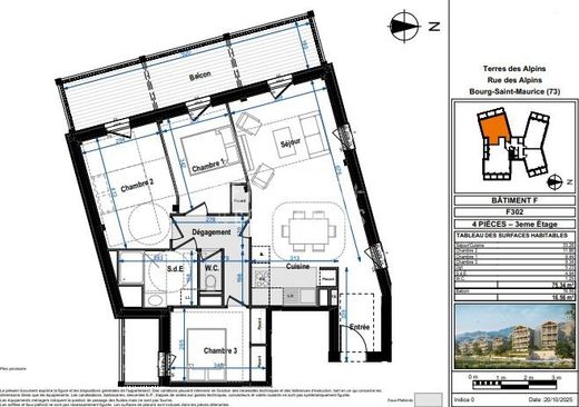
Luxe appartement met 4 kamers te koop in Bourg-Saint-Maurice, Auvergne-Rhône-Alpes

€ 509.900
75 m² 1 3

Omschrijving

Alles lezen

Details

kamers:
4
Slaapkamers:
3
Badkamers:
1
Oppervlakte:
75 m²
Aantal balkons:
1
Bouwjaar:
2028
Lift
Verdieping:
3
Code:
VA6567 - YANN - ALEXIA-PASQUE
Aanvullende Details
Te dragen kosten:
Verkoper
Prijs zonder kosten:
€ 509.900
In mede-eigendom
Percelen in mede-eigendom:
220
Energieklasse:
Not provided
Gasemissieklasse:
Not provided

Ontdek meer

Positie

De adverteerder heeft niet het exacte adres van het pand verstrekt. Vraag de exacte locatie op