De versie van uw browser wordt niet langer ondersteund. Werk het bij voor een betere ervaring.
€ 259.800
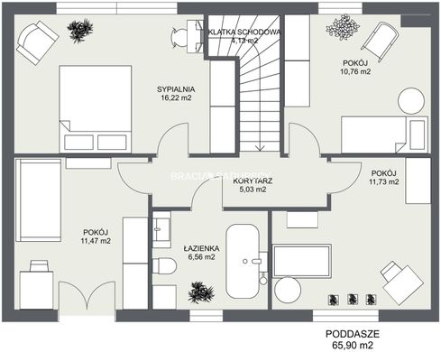
132 m²
Advertenties Listing
14
Luxueus huis te koop in Warszawka, Michałowice, Powiat krakowski, Klein-Polen
€ 259.800
AED AED
AU$ AUD
R$ BRL
CA$ CAD
Fr. CHF
CN¥ CNY
₡ CRC
€ EUR
£ GBP
HK$ HKD
₪ ILS
JP¥ JPY
₩ KRW
zł PLN
₽ RUB
TL TRY
US$ USD
259.800
132 m²
Omschrijving
De automatische vertaling wordt gegenereerd door Google en kan niet volledig correct zijn.
Het spijt ons, er is een probleem opgetreden met de automatische vertaling met Google Translate. Probeer het later opnieuw.