De versie van uw browser wordt niet langer ondersteund. Werk het bij voor een betere ervaring.

€ 765.000

Luxe villa met 3 kamers te koop in Puntagorda, Canarische Eilanden

€ 765.000
419 m² 2 3

Omschrijving

Gelegen in het idyllische dorp Alcalali bevindt zich dit nieuwbouwproject met verleende bouwvergunning. Met een geplande bebouwde oppervlakte van 211 m2 op een royaal perceel van 1.021 m2 biedt dit project de mogelijkheid om een prachtige Ibiza stijl villa te laten bouwen in de rustige, natuurlijke omgeving van de Jalon vallei.



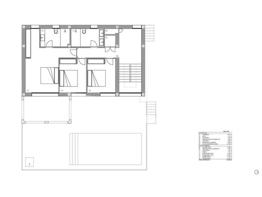
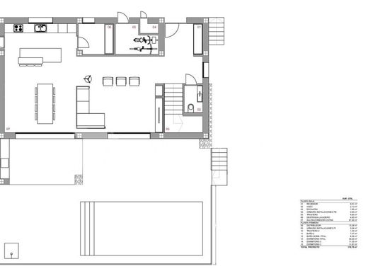
Het project voorziet een villa die zal worden gerealiseerd over twee verdiepingen. Op de benedenverdieping is een ruime woon-eetkamer gepland met een open keuken voorzien van kookeiland, aangevuld met een voorraadkast, opslagruimte en een gastentoilet. De bovenverdieping is ontworpen met drie comfortabele slaapkamers en twee stijlvol vormgegeven badkamers die functionaliteit en esthetiek combineren, waarvan een en-suite. De indeling van het project is zorgvuldig uitgewerkt om een optimale benutting van de ruimte te garanderen en een natuurlijke flow te creeren tussen de verschillende leefruimtes.



Daarnaast is de privetuin ontworpen om volop te genieten van de buitenlucht en de natuur in volledige privacy, evenals twee terrassen waar het mediterrane klimaat het hele jaar door beleefd kan worden.



Verder is er een zwembad van 8 x 4 meter voorzien, ideaal voor verfrissing tijdens de warme zomermaanden. De buitenruimtes zullen bestaan uit zowel een open terras als een overdekt terras, zodat er steeds keuze is tussen zon en schaduw. Het perceel zal volledig worden omheind, wat zorgt voor veiligheid en gemoedsrust, terwijl de goede aansluiting op nabijgelegen hoofdwegen een vlotte bereikbaarheid van lokale voorzieningen en bezienswaardigheden garandeert.



De villa zal worden uitgerust met airconditioning voor verwarming en koeling via luchtkanalen, waardoor in elke ruimte een aangenaam binnenklimaat wordt gecreeerd, ongeacht het seizoen. Dubbele beglazing, automatische rolluiken in de slaapkamers en de voorziene parkeermogelijkheden en opslagruimte dragen bij aan extra wooncomfort.



Dit project vertegenwoordigt niet enkel de realisatie van een woning, maar een levensstijl waarin rust, comfort en moderne luxe samenkomen in het charmante Alcalali. Met zijn eigentijdse architectuur en doordachte voorzieningen vormt dit project een uitnodiging om dagelijks te genieten van een uitzonderlijke woonomgeving waar de tijd lijkt stil te staan.

Alles lezen

Details

kamers:
3
Slaapkamers:
3
Badkamers:
2
Externe oppervlakte:
1.021 m²
Oppervlakte:
419 m²
Code:
4599ALC
Externe Voorzieningen:ZwembadTuin
Status:
Nieuw of onder contructie

Ontdek meer

Positie

De adverteerder heeft niet het exacte adres van het pand verstrekt. Vraag de exacte locatie op