The version of your browser is no longer supported. Update it for a better experience.

JP¥ 121,145,000

Luxury Villa for sale in Mljet, Croatia

JP¥ 121,145,000
96 m² 2 3

Description

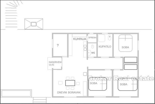
The island of Mljet, house first row to the sea. The house is located in an attractive location by the sea. With no road or road in front of you, with your own practically private beach where there is also a mooring for a boat. The house is one-story, unfinished, infrastructure equipped with electricity and water, it currently has a habitable 1 floor with a floor plan area of 96m2. The house belongs to land with a total area of 3500m2, which is divided into the first row to the sea where the house itself is located, and the second row immediately above the house. Mljet is the most forested Croatian island, a national park, an island of mysticism, where you can rarely find real estate for purchase, and even more rarely a house in an attractive location in the first row to the sea. The island is connected by ferry to the Pelješac peninsula, which is a 40-minute drive by car to the first highway junction, or an hour's drive to the airport in Dubrovnik.

Read all

Details

Bedrooms:
3
Bathrooms:
2
External size:
3,500 m²
Size:
96 m²
Exterior Amenities:
Waterfront
Reference:
2021/336
View:
Sea

Find out more

Position

The advertiser did not provide the exact address of the property. Request the exact location