The version of your browser is no longer supported. Update it for a better experience.

zł 2,225,500

4 bedroom luxury Villa for sale in Fort Lauderdale, United States

zł 2,225,500
147 m² 3 4

Description

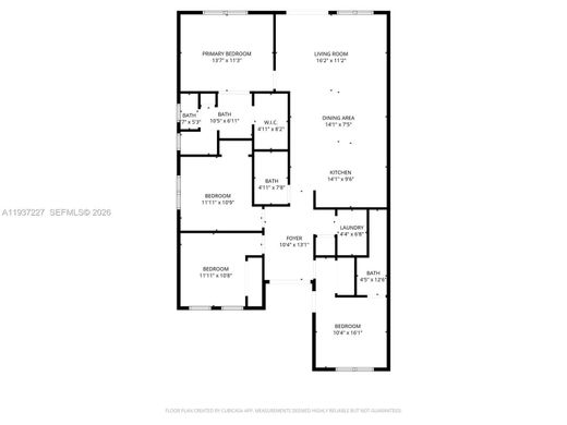
Seller Motivated! 2025 New Construction own a modern home in a prime Fort Lauderdale location! Bright open layout with 10' ceilings and large windows that fill the space with natural light. The gourmet kitchen offers quartz countertops and SS appliances, perfect for daily living and entertaining. The owner’s suite includes a double vanity, walk-in closet, and private toilet area. A major plus is the 4th bedroom with its own entrance and full bath—ideal for guests, in-laws, or rental income to help reduce your mortgage. Impact doors and a separate laundry room add convenience. Large backyard for your personal touch and a 4-car spaces. Prime location—5 mins to Downtown, 10 to airport and beaches. Offering buyer incentives. NO HOA.

Read all

Details

Bedrooms:
4
Bathrooms:
3
External size:
470 m²
Size:
147 m²
Exterior Amenities:PatioSecurity System
Interior Amenities:
Disabled Access
Reference:
A11937227
Year of construction:
2025

Find out more

Position

The advertiser did not provide the exact address of the property. Request the exact location