Tarayıcınızın sürümü artık desteklenmiyor. Daha iyi bir deneyim için Şimdi güncelle.
TL 112.472.000
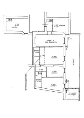
175 m²
2
2
İlanlar listesi
41
Via degli Uffici del Vicario, 33, Roma, Lazio bölgesinde, satılık m2 175 Lüks daire
TL 112.472.000
AED AED
AU$ AUD
R$ BRL
CA$ CAD
Fr. CHF
CN¥ CNY
₡ CRC
€ EUR
£ GBP
HK$ HKD
₪ ILS
JP¥ JPY
₩ KRW
zł PLN
₽ RUB
TL TRY
US$ USD
112.472.000
175 m² 2 2
Açıklamalar
Otomatik çeviri Google Translate tamamen doğru olmayabilir.
Üzgünüz, Google Translate ile otomatik çeviride sorun oluştu.Lütfen daha sonra tekrar deneyin.