גרסת הדפדפן שלך אינה נתמכת עוד. עדכן אותו לחוויה טובה יותר.
€ 289,900
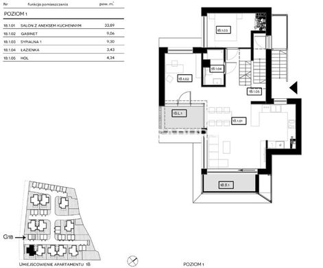
128 m²
רשימת מודעות
11
Maciejkowa, קרקוב, Kraków, Lesser Poland Voivodeship ב למכירה דירת יוקרתית
€ 289,900
€ EUR
AED AED
AU$ AUD
R$ BRL
CA$ CAD
Fr. CHF
CN¥ CNY
₡ CRC
€ EUR
£ GBP
HK$ HKD
₪ ILS
JP¥ JPY
₩ KRW
zł PLN
₽ RUB
TL TRY
US$ USD
אישור
289,900
128 m²
ותאור
תאור מקורי
מופעל על ידי
התרגום האוטומטי משתמש בתוכנת התרגום של גוגל ועשוי להיות לא מדוייק.
מצטערים, אירעה תקלה במהלך התרגום האוטומטי עם Google Translate. נסה שוב מאוחר יותר.
תרגם תאור זה לעברית
קראו את כל
פרטים
מידה פנימית:
128 m²
כתובת:
Maciejkowa
קוד:
BS2-MS-296516-9
קומה:
2
שנת הבנייה:
2023
גלה עוד
בקשת מידע נוסף
מיקום
מודעות דומות
מודעות קשורות בקרקוב
למכירה בתי יוקרה
דירות יוקרה להשכרה
סוכנות נדל"ן יוקרתי