גרסת הדפדפן שלך אינה נתמכת עוד. עדכן אותו לחוויה טובה יותר.
JP¥ 115,231,000
79 m²
2
2
רשימת מודעות
7
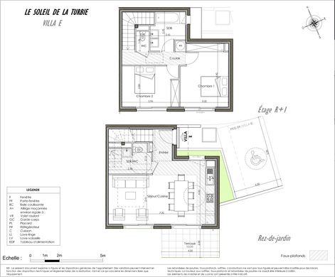
La Turbie, פרובנס-אלפ-קוט ד'אזור ב למכירה וילה יוקרתית 3
JP¥ 115,231,000
JP¥ JPY
AED AED
AU$ AUD
R$ BRL
CA$ CAD
Fr. CHF
CN¥ CNY
₡ CRC
€ EUR
£ GBP
HK$ HKD
₪ ILS
JP¥ JPY
₩ KRW
zł PLN
₽ RUB
TL TRY
US$ USD
אישור
115,231,000
79 m²
2
2
ותאור
תאור מקורי
מופעל על ידי
התרגום האוטומטי משתמש בתוכנת התרגום של גוגל ועשוי להיות לא מדוייק.
מצטערים, אירעה תקלה במהלך התרגום האוטומטי עם Google Translate. נסה שוב מאוחר יותר.
תרגם תאור זה לעברית
קראו את כל
פרטים
חדרים:
3
חדרי שינה:
2
חדרי שירותים:
2
מידה פנימית:
79 m²
מרפסת
קוד:
VAP977(F)
שירותים חיצוניים:
גינה
שנת הבנייה:
2024
חניה
דירוג אנרגטי
A
דרגת פליטת גז
A
גלה עוד
בקשת מידע נוסף
מיקום
המפרסם לא מסר את הכתובת המדויקת של הנכס.
בקש את המיקום המדויק
מודעות דומות
מודעות קשורות בLa Turbie
למכירה בתי יוקרה
וילות מפוארות להשכרה
סוכנות נדל"ן יוקרתי