גרסת הדפדפן שלך אינה נתמכת עוד. עדכן אותו לחוויה טובה יותר.

€ 618,000

Paris 20 Ménilmontant, פריז, Île-de-France ב למכירה דירה יוקרתית 3

€ 618,000
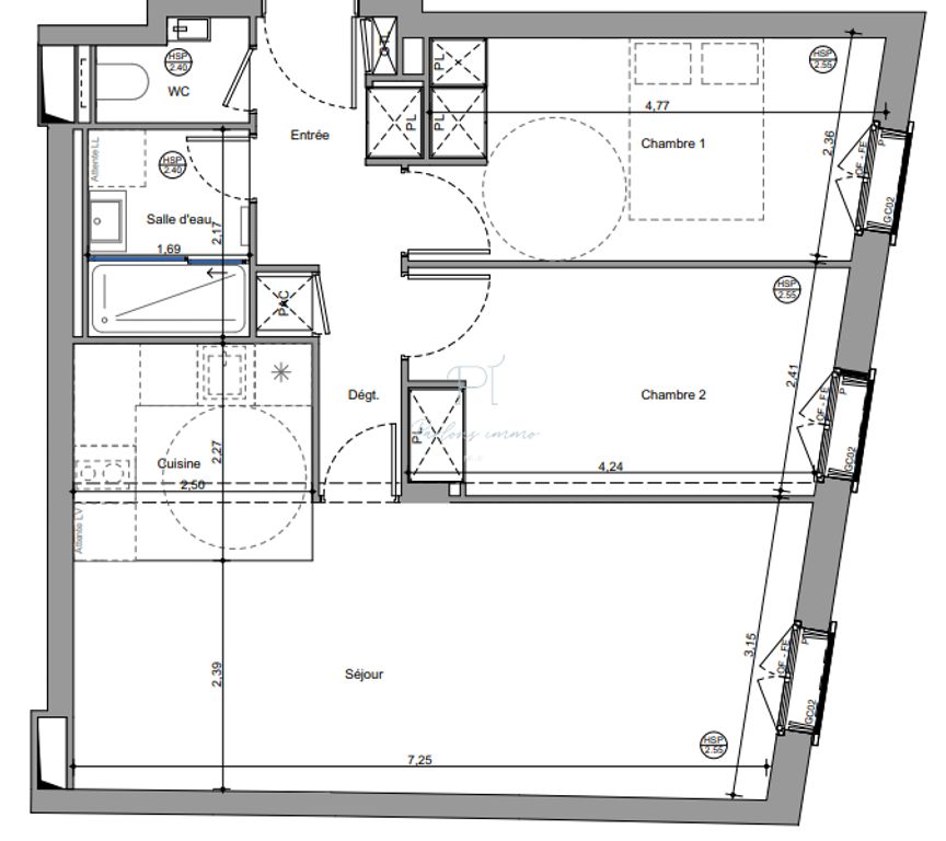
60 m² 1 2

ותאור

קראו את כל

פרטים

חדרים:
3
חדרי שינה:
2
חדרי שירותים:
1
מידה פנימית:
60 m²
מעלית
קוד:
IEVAP460003626
שנת הבנייה:
2026
דירוג אנרגטי:
לא מסופק
דרגת פליטת גז:
לא מסופק

גלה עוד

מיקום

המפרסם לא מסר את הכתובת המדויקת של הנכס. בקש את המיקום המדויק