גרסת הדפדפן שלך אינה נתמכת עוד. עדכן אותו לחוויה טובה יותר.
CN¥ 4,095,200
101 m²
1
3
רשימת מודעות
8
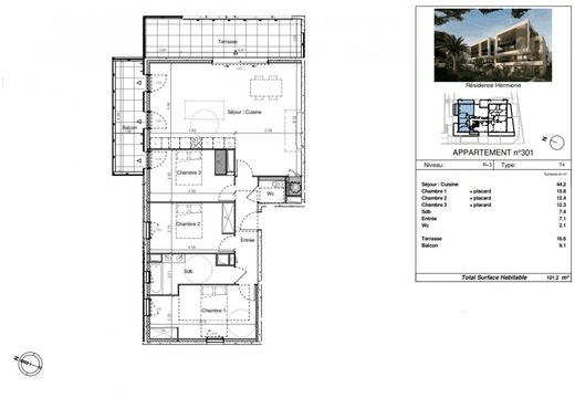
Sète, Occitanie ב למכירה דירה יוקרתית 4
CN¥ 4,095,200
CN¥ CNY
AED AED
AU$ AUD
R$ BRL
CA$ CAD
Fr. CHF
CN¥ CNY
₡ CRC
€ EUR
£ GBP
HK$ HKD
₪ ILS
JP¥ JPY
₩ KRW
zł PLN
₽ RUB
TL TRY
US$ USD
אישור
4,095,200
101 m²
1
3
ותאור
תאור מקורי
מופעל על ידי
התרגום האוטומטי משתמש בתוכנת התרגום של גוגל ועשוי להיות לא מדוייק.
מצטערים, אירעה תקלה במהלך התרגום האוטומטי עם Google Translate. נסה שוב מאוחר יותר.
תרגם תאור זה לעברית
קראו את כל
פרטים
חדרים:
4
חדרי שינה:
3
חדרי שירותים:
1
מידה פנימית:
101 m²
מספר מרפסות:
1
מרפסת
סטטוס:
מצויין
קוד:
388096AHKM
קומה:
3
דירוג אנרגטי:
לא מסופק
דרגת פליטת גז:
לא מסופק
גלה עוד
בקשת מידע נוסף
מיקום
המפרסם לא מסר את הכתובת המדויקת של הנכס. המיקום על המפה משוער.
בקש את המיקום המדויק
מודעות דומות
מודעות קשורות בSète
למכירה בתי יוקרה
סוכנות נדל"ן יוקרתי